53
Long Meadow, Bolton, BL7
Offers around £725,000
4 bedrooms, 3 bathrooms, 4 receptions
Summary:
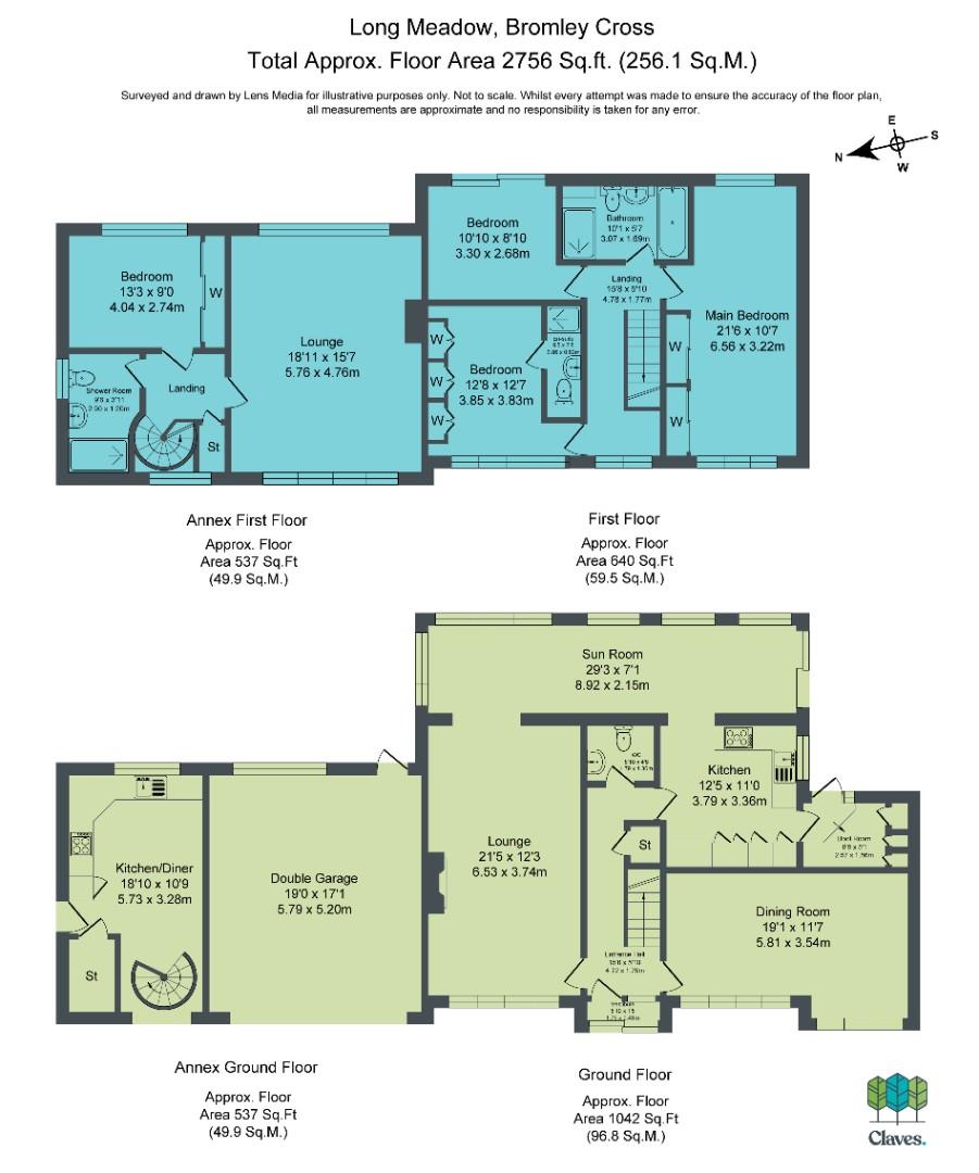
Enjoying a secluded and picturesque setting within a well-established and highly sought-after street in Bromley Cross, this substantial detached residence is a rare gem. It boasts over 2,700 sq ft of internal accommodation, and with a river and private woodland to the rear, it is your own tranquil oasis. A well-presented family home, the property also benefits from a fully self-contained annex, providing exceptional flexibility for multi-generational living or guest accommodation.The accommodation comprises a spacious main house featuring three bedrooms, two bathrooms, three reception rooms, a downstairs WC and utility. In addition, there is an attached two-storey annex incorporating a bedroom, bathroom, kitchen-diner and lounge, along with an integrated double garage.Externally, the property occupies a generous plot with a dual access driveway to the front, while to the rear are beautifully landscaped patios, gardens and decking, which extend through the private woodland and down to the river below.
Key Features:
- Tranquil river & private woodland backdrop to rear
- Large detached home with self-contained annex
- Spacious rooms & excellent reconfiguration potential
- Highly private plot with landscaped gardens
- Very quiet & sought after location
- Easy access to train station & motorway
- Walking distance to good schools
- Variety of nearby amenities in Harwood & Bromley Cross
Full Details:
Main House Living Space
The home welcomes you via a central entrance hall, offering an immediate sense of its traditional and homely character. To the right sits a large reception room, traditionally used as a formal dining room, yet offering excellent versatility to suit a variety of uses. To the left is the main living room — a beautifully bright and airy space, with natural light flowing in from both the front and rear aspects. Generously proportioned, it provides a highly practical and comfortable setting for modern family life.
The main living room seamlessly flows through to the garden room at the rear, creating an open aspect layout that truly showcases the bliss and serenity of this unique, close-to-nature setting. From here, a selection of large windows allows you to enjoy views of the surrounding woodland, where local wildlife can be observed and the changing seasons appreciated from the comfort of your home.
The garden room continues through to the kitchen, which also enjoys the same lovely woodland outlook. The kitchen is well-equipped with a range of integrated appliances, including a Smeg dishwasher, oven and hob with hood, Bosch fridge-freezer and washing machine, as well as a double-width Belfast-style German sink.
Conveniently located just off the kitchen is the utility/boot room, providing external access along with valuable additional storage space. Further enhancing the practicality of this living space is the downstairs WC — an essential feature for modern family living.
Main House Bedrooms & Bathrooms
To the first floor are three well-proportioned double bedrooms, each offering ample space to comfortably accommodate family living. The principal bedroom is particularly generous, spanning the full depth of the property from front to rear, and is complemented by contemporary fitted wardrobes with mirrored sliding doors.
The second bedroom is also well-appointed, benefitting from a comprehensive range of fitted wardrobes, along with a three-piece shower en-suite. The third bedroom enjoys a close connection to the surrounding woodland, featuring glass sliding doors that open out onto a balcony — an ideal spot to take in the peaceful natural setting.
The spacious family bathroom is fitted with a four-piece suite, comprising a walk-in shower, bath, WC and a basin unit with integral storage, providing both style and practicality.
Annex Living Space
The living space within the annex is presented in immaculate condition and styled in the manner of a premium Swiss chalet, characterised by an abundance of wood and warm, neutral tones. The solid wood fitted kitchen is located on the ground floor and offers ample space to accommodate a large dining table, creating a welcoming and sociable environment.
Integrated appliances include an electric oven and gas hob with hood, along with a Belfast sink. A large storage closet adds further practicality, while exposed wooden beams and panelling enhance the rustic log-cabin aesthetic. A striking black cast iron spiral staircase provides an eye-catching feature and leads to the first floor.
Upstairs, a generously sized living room is centred around a large window overlooking the woodland, allowing natural light to flood the space while framing the surrounding views. There is ample room for multiple sofas, a desk, and additional freestanding furniture, with the scale of the room offering excellent flexibility. It would also lend itself perfectly to use as a spacious home office or hobby room if not permanently used as an annex lounge.
Annex Bedroom & Bathroom
Also located on the first floor of the annex is a well-proportioned double bedroom, enjoying scenic views and benefitting from fitted wardrobes with glass sliding doors, which enhance the natural light within the space while adding a subtle contemporary touch.
Conveniently positioned adjacent to the bedroom is the three-piece shower en-suite, where the use of wood and warm, neutral tones continues, maintaining the cohesive chalet-inspired aesthetic.
Conversion & Other Potential
If preferred, the property lends itself to knocking through from the main house to the annex, offering the exciting opportunity to create a substantially larger six-bedroom home. This flexibility allows the property to adapt effortlessly to a range of changing lifestyle needs, whether that be accommodating a growing family, creating additional reception or workspace, or adding lifestyle appeal via a media and games room, or a home gym.
The existing layout already provides a strong foundation for integration, making this a highly appealing prospect for those seeking both immediate functionality and scope for enhancement if desired. Equally, the current arrangement as a separate annex remains ideal for multi-generational living, guest accommodation or independent space for older children, ensuring the property delivers versatility both now and in the future.
Outside Space
The property is set within a beautifully presented and highly private plot, approached via a high-quality dual entrance resin driveway that provides ample parking and ease of access. Mature, well-maintained hedging encloses the frontage, enhancing the sense of seclusion while a neatly kept lawn and established planting contribute to the home’s strong kerb appeal.
To the rear, the setting becomes truly special, with landscaped gardens that gently transition into private woodland. A premium quality greenhouse and shed bring practical appeal, while a selection of patio and decking areas provide ideal spaces for outdoor dining and relaxation, positioned to make the most of the peaceful surroundings and natural light. Well-stocked planting, winding pathways and terraced sections create a unique design and flow throughout the garden, while elevated seating areas offer delightful vantage points over the woodland and river below. The result is a rare combination of usable outdoor space and immersive natural landscape.
Location
Situated on the highly regarded Long Meadow in Bromley Cross, this property enjoys a prime position within a well-established and sought-after residential setting. The area is particularly popular with families, offering a peaceful environment while remaining conveniently close to a range of local amenities.
Bromley Cross provides excellent access to well-regarded schools, everyday shops, cafés and leisure facilities, while also benefiting from strong transport links, including Bromley Cross train station, which offers direct connections into Bolton, Manchester and beyond.
The location is especially appealing for those who enjoy the outdoors, with an abundance of nearby countryside, scenic walks and open green spaces right on the doorstep, including easy access to Jumbles Country Park. Combining a tranquil, semi-rural feel with excellent accessibility, Long Meadow represents an ideal setting for modern family living.
Key Details
Tax band: F
Tenure: Freehold
Heating: There are two separate central heating systems – one for the main house and one for the annex – both have Worcester combi boilers
Water: No meter, on rates
Security: Alarmed
Viewing & Disclaimer:
Please contact us on 01204 929 940 if you wish to arrange a viewing appointment for this property, or require further information.
Claves Estate Agents endeavour to maintain accurate depictions of properties in Virtual Tours, Floor Plans and descriptions, however, these are intended only as a guide and purchasers must satisfy themselves by personal inspection.
